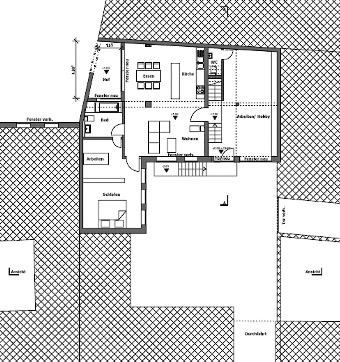
Programm Umbau des Hinterhofgebäudes zu zwei Wohnheinheiten mit Atelier und Büroteil
Ort Saarbrücken-St.Johann
Bauherr Privat
Entwurf Carsten Diez, Igor Torres
Mitarbeit Nina Scheffler
Planung/Fertigstellung 2011/2012
Der Traum vom Eigenheim lässt sich scheinbar oft nur am Stadtrand verwirklichen. Innerstädtische Baugrundstücke sind auf dem Markt rar, aber mitten in der Stadt, in einem Innenhof hat die Familie ein seit Jahren unbewohntes und heruntergekommenes Hinterhofgebäude mitten im Nauwieser Viertel gefunden. Trotz schwieriger Randbedingungen und beengter Verhältnisse wurde das ehemalige Lagergebäude für Süsswaren in ein vollwertiges Haus mit zwei Wohneinheiten, Atelier und Dachterrasse umgewandelt. Nach der saarländischen Landesbauordnung ist das Gebäude der Gebäudeklasse 2 zugeordnet. Für beide Wohnungseinheiten wird ein gemeinsames Treppenhaus geschaffen. Auf der rechten Gebäudeseite wird eine Dachaufstockung vorgenommen, so dass darunter Aufenthaltsräume möglich sind. Das restliche Pultdach wird entfernt und ein Dachterrasse errichtet. Auf der linken Gebäudeseite wird ein Hof geschaffen der den Einbau von Fenstern und die Belichtung und Belüftung der dahinterliegenden Räume ermöglicht.










