Programm Studie für die Sanierung und den Umbau des Landesjugendwerks in Ludweiler
Ort Völklingen-Ludweiler
Auftraggeber AWO Landesverband Saarland e.V.
Entwurf Carsten Diez und Igor Torres
Mitarbeit Florian Schamper, Hiba El-Maoula, Sarah Ull-Mendez
Planung 2023
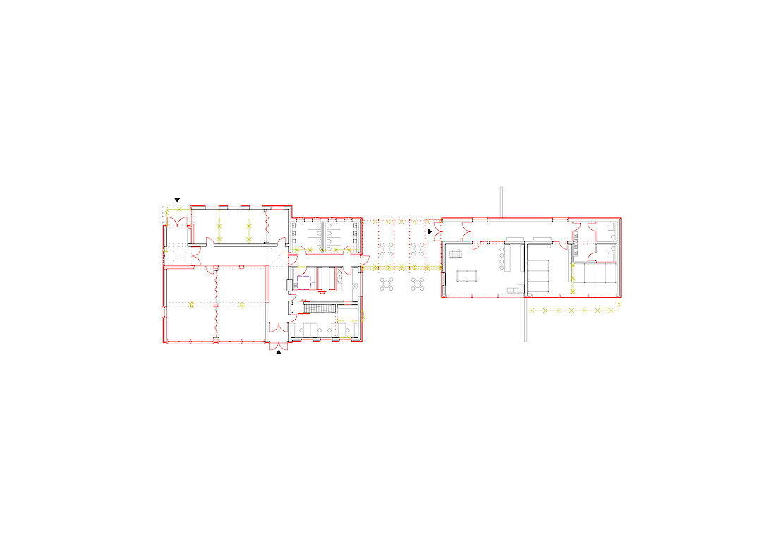
Auf einer Anhöhe zwischen Ludweiler und Lauterbach befindet sich das Landesjugendwerks (LJW) der Arbeiterwohlfahrt Saarland (AWO). Auf dem weitläufigen Gelände, umgeben von idyllischem Wald, verteilen sich mehrere Gebäude, die für Tagungen, Freizeitveranstaltungen und Übernachtungen genutzt werden. Verwaltet und gepflegt wird das Gelände komplett ehrenamtlich durch das LJW, das dort auch die Landesgeschäftsstelle betreibt. Insbesondere das zentral gelegene Hauptgebäude, das aus den 1950er Jahren stammt und bis in die 1970er Jahren mehrfach erweitert wurde, weist massive funktionale, baukonstruktive und energetische Defizite auf. Kurz: die Anlage entspricht nicht mehr den heutigen Standards, um weiterhin als attraktiven Begegnungsort für Vereine, Gruppen und Initiativen zu dienen.
Zur Entscheidungsfindung über die zukünftige Ausrichtung des Standortes wurden wir mit einer ausführlichen Studie beauftragt, die belastbare Antworten auf die Frage geben sollte, wie das in die Jahre gekommene Gebäude innerhalb eines sehr knappen Budgets energetisch und baukonstruktiv saniert sowie mit einem neuen Raumzuschnitt funktional verbessert werden kann. Daneben sollen auch die Freianlagen neu geordnet und mit zeitgemässen Freizeitmöglichkeiten aufgewertet werden, mit dem Ziel für den Standort dauerhafte Nutzungsperspektiven aufzuzeigen.








