Programm Umbau und Erweiterung der Grundschule
Ort Trier
Auftraggeber Stadt Trier vertreten durch die Gebäudewirtschaft GWT
Auftragsart Direktbeauftragung
Leistung Studie mit Bestandsuntersuchung, Gestaltungsvarianten und Kostenschätzung
Planung 2016
Entwurf Carsten Diez, Igor Torres
Mitarbeit Dustin Alt
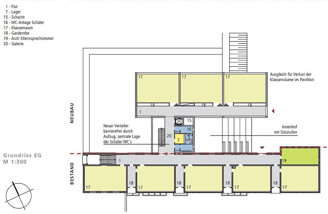
Die Egbert-Grundschule kann seit Herbst 2013 nicht mehr ihr Schulgebäude an der Olewiger Straße 15 in Trier nutzen. Das Schulgebäude ist dringend sanierungsbedürftig; Schimmelbefall machte eine Schließung der Gebäude unumgänglich. Das Hauptgebäude der Schule, die 1951 als Volksschule St. Agritius von dem bedeutenden Architekten Alfons Leitl (1909-1975) entworfen wurde, soll nun gemäß Stadtratsbeschluss konstruktiv, energetisch, technisch und gestalterisch saniert werden. Hinzu kommen Anforderungen des Brandschutzes und der Barrierefreiheit. Für die Pavillons soll ein Ersatzneubau errichtet werden. Die Sanitärräume und die Pausenhalle sollen saniert oder gegebenenfalls gleichwertig ersetzt werden.
Zur Entscheidungsfindung für Politik und Verwaltung hat das Architekturbüro baubar eine ausführliche Studie erstellt, die belastbare Antworten auf die Frage gibt, wie das Gebäude aus den 1950er Jahren innerhalb eines sehr knappen Zeitrahmens und Budgets energetisch und baukonstruktiv saniert sowie mit neuen Räumen für den Ganztagsschulbetrieb erweitert werden kann.









